Дом из газобетона Юпита, 143 кв.м

  • Описание
  • Характеристики
  • Оплата и доставка

Уникальный мансардный дом со вторым светом "Юпита" совместил в себе все современные тенденции. Самое лучшее решение для большой семьи.


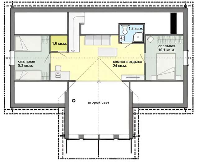
Современный дом с мансардным этажом, в котором есть все:


- Второй свет

- 5 спальных комнат которые вместят 7 человек!

- 3 сан узла

- Мастер-спальня с собственным гардеробом и ванной комнатой

- Просторная кухня – гостиная с выходом на большую террасу

- Дополнительная зона отдыха на мансардном этаже с балконом на второй свет

- Большая котельная-прачечная с выходами из дома и из улицы

- Лапомойки

- Кладовые комнаты, в том числе под лестницей

- Большая терраса

- Камин

- Большие панорамные окна и двери

- Лофт

- Большая кухня

Один из наиболее эргономичных проектов для большой семьи.

И все в габаритах до 130 кв.м.

Террасы поставляется отдельно с привязкой к участку

Вы можете внести свои изменения в проект, закажите предварительный расчет своей идеи или закажите типовой проект.

Дом доступен в ипотеку

Оплата

Оплата товара осуществляется по наличному или безналичному расчету.

  • Оплата наличными. Оплатить можно в офисе компании (есть терминал для пластиковых карт VISA и MasterCard)
  • Безналичный расчет доставка будет произведена в течение 3 дней после поступления денежных средств на наш расчетный счет.

Доставка

Наша компания располагает собственным автопарком. Доставка осуществляется в рабочие дни с 9-00 до 20-00. Оформляется доставка одновременно с заказом.

Если вы забираете ваши товары самостоятельно, то вам необходимо будет связаться с нашими менеджерами, чтобы согласовать время отгрузки.

При заказе на сумму более 50 000 руб. доставка по Санкт-Петербургу и Ленинградской области (30 км от КАД) осуществляется бесплатно!

Популярные товары

Акция
Хит продаж
Дом из газобетона ГБ-352, 80,35 кв.м
Акция
Хит продаж
Дом из газобетона ГБ-325, 125,5 кв.м
Менеджер
Сафронова Екатерина
Ведущий специалист
Консультация специалиста
Мы свяжемся с вами в течение 5 минут
Менеджер
Сафронова Екатерина
Ведущий специалист
Оставить заявку
Мы свяжемся с вами в течение 5 минут
Менеджер
Сафронова Екатерина
Ведущий специалист
Заказать расчет
Мы свяжемся с вами в течение 5 минут