Дом из газобетона Власипоя, 41 кв.м

  • Описание
  • Характеристики
  • Оплата и доставка
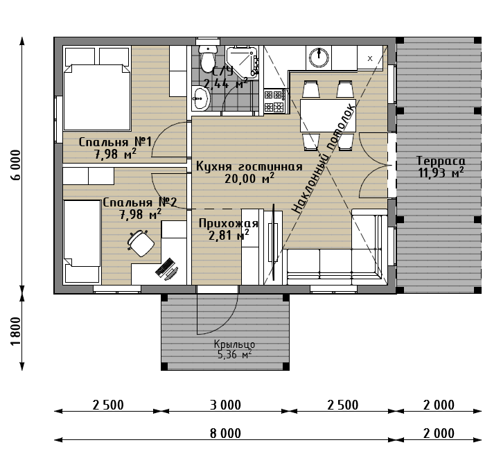
Дом Власипоя - идеальный вариант для дачного отдыха. Компактный дом вмещает все необходимое: кухню, гостиную, спальню, санузел и даже гардероб. Объединение кухни и гостиной создает удобство и экономит пространство.

Светлая спальня с двумя окнами создает комфортную атмосферу. Расположение кухни и санузла на одной стене дома упрощает проведение инженерных сетей и коммуникаций.

Особое внимание уделено наличию террасы, которая защищает от солнца или дождя. Площадь террасы позволяет разместить стол и стулья, чтобы проводить больше времени на свежем воздухе, что особенно важно для городских жителей.

Компактность садового каркасного дома Янисъярви позволяет его построить даже на небольшом участке земли, если у вас ограничена площадь.

Кроме того, дом Яккима может быть использован как домик для гостей, расположенный рядом с основным домом.

Мы гарантируем высокое качество строительства и использование современных технологий и материалов. Дом Яккима предлагает уютное и функциональное пространство для вашего дачного отдыха.

Посетите наш сайт, чтобы узнать больше о доме Янисъярви и других интересных проектах. Мы готовы помочь вам создать свой идеальный дом для отдыха и комфорта.быть использован как домик для гостей, рядом с основным домом.

Оплата

Оплата товара осуществляется по наличному или безналичному расчету.

  • Оплата наличными. Оплатить можно в офисе компании (есть терминал для пластиковых карт VISA и MasterCard)
  • Безналичный расчет доставка будет произведена в течение 3 дней после поступления денежных средств на наш расчетный счет.

Доставка

Наша компания располагает собственным автопарком. Доставка осуществляется в рабочие дни с 9-00 до 20-00. Оформляется доставка одновременно с заказом.

Если вы забираете ваши товары самостоятельно, то вам необходимо будет связаться с нашими менеджерами, чтобы согласовать время отгрузки.

При заказе на сумму более 50 000 руб. доставка по Санкт-Петербургу и Ленинградской области (30 км от КАД) осуществляется бесплатно!

Популярные товары

Акция
Хит продаж
Дом из газобетона ГБ-352, 80,35 кв.м
Акция
Хит продаж
Дом из газобетона ГБ-325, 125,5 кв.м
Менеджер
Сафронова Екатерина
Ведущий специалист
Консультация специалиста
Мы свяжемся с вами в течение 5 минут
Менеджер
Сафронова Екатерина
Ведущий специалист
Оставить заявку
Мы свяжемся с вами в течение 5 минут
Менеджер
Сафронова Екатерина
Ведущий специалист
Заказать расчет
Мы свяжемся с вами в течение 5 минут