Дом Йонка, 72 кв.м

Дом Йонка, 72 кв.м
Характеристики
Общая площадь дома, м²
72
Размеры дома, м
12x8
Количество этажей
1
Наличие гаража
без гаража
Количество комнат
3
Количество спален
2
Стоимость готового дома
р.

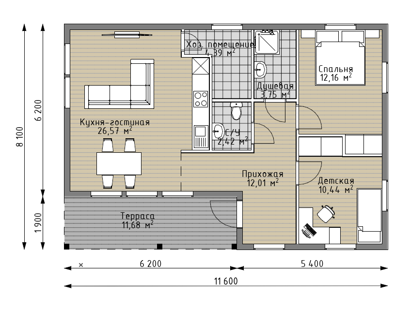
  • Планировка

Проект мансардного дома с террасой, площадью 72 м2 – прекрасное решение бюджетное и высоко эффективное решение.

Современный дом, в котором есть все:

- 2 спальных комнаты

- просторная кухня- гостинная

- прачечная и техническое помещение

- сауна и камин - опционально

- большие панорамные окна и двери

Один из наиболее эргономичных проектов для любой семьи.

И все в габаритах до 80 кв.м.

Вы можете внести свои изменения в проект, закажите предварительный расчет своей идеи или закажите типовой проект.

Небольшие габариты дома хорошо разместятся даже на маленьком земельном участке.

Популярные проекты

Дом ГБ-90, 137.68 кв.м
Дом ГБ-90, 137.68 кв.м
Акция
Хит продаж
Общая площадь дома, м²
82
Размеры дома, м
8x12
Количество комнат
3
Дом ГБ-120, 125 кв.м
Дом ГБ-120, 125 кв.м
Акция
Хит продаж
Общая площадь дома, м²
82
Размеры дома, м
8x12
Количество комнат
3
Дом ГБ-177, 82 кв.м
Дом ГБ-177, 82 кв.м
Акция
Хит продаж
Общая площадь дома, м²
82
Размеры дома, м
8x12
Количество комнат
3
Менеджер
Сафронова Екатерина
Ведущий специалист
Консультация специалиста
Мы свяжемся с вами в течение 5 минут
Менеджер
Сафронова Екатерина
Ведущий специалист
Оставить заявку
Мы свяжемся с вами в течение 5 минут
Менеджер
Сафронова Екатерина
Ведущий специалист
Заказать расчет
Мы свяжемся с вами в течение 5 минут