Комплект каркаса Юпита, 143 кв.м

Комплект каркаса Юпита, 143 кв.м
Характеристики
Общая площадь дома, м²
143
Количество этажей
Мансардный
Наличие гаража
без гаража
Количество комнат
3
Количество спален
5+
Стоимость готового дома
р.

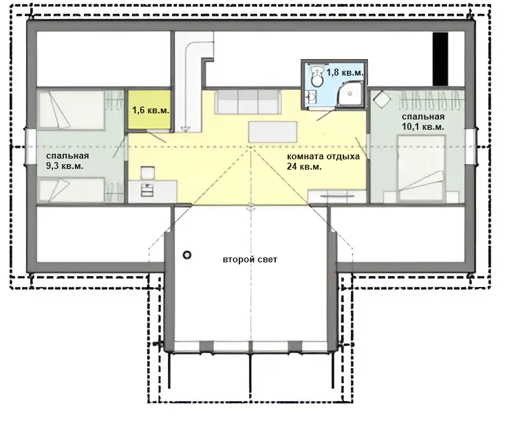
  • Планировка

Уникальный мансардный дом со вторым светом "Юпита" совместил в себе все современные тенденции. Самое лучшее решение для большой семьи.


Современный дом с мансардным этажом, в котором есть все:


- Второй свет

- 5 спальных комнат которые вместят 7 человек!

- 3 сан узла

- Мастер-спальня с собственным гардеробом и ванной комнатой

- Просторная кухня – гостиная с выходом на большую террасу

- Дополнительная зона отдыха на мансардном этаже с балконом на второй свет

- Большая котельная-прачечная с выходами из дома и из улицы

- Лапомойки

- Кладовые комнаты, в том числе под лестницей

- Большая терраса

- Камин

- Большие панорамные окна и двери

- Лофт

- Большая кухня

Один из наиболее эргономичных проектов для большой семьи.

И все в габаритах до 130 кв.м.

Террасы поставляется отдельно с привязкой к участку

Вы можете внести свои изменения в проект, закажите предварительный расчет своей идеи или закажите типовой проект.

Дом доступен в ипотеку

Популярные проекты

Менеджер
Сафронова Екатерина
Ведущий специалист
Консультация специалиста
Мы свяжемся с вами в течение 5 минут
Менеджер
Сафронова Екатерина
Ведущий специалист
Оставить заявку
Мы свяжемся с вами в течение 5 минут
Менеджер
Сафронова Екатерина
Ведущий специалист
Заказать расчет
Мы свяжемся с вами в течение 5 минут