Дом ГБ-120, 125 кв.м

Дом ГБ-120, 125 кв.м
Акция
Хит продаж
Характеристики
Общая площадь дома, м²
82
Размеры дома, м
8x12
Количество этажей
1
Наличие гаража
на 1 машину
Количество комнат
3
Количество спален
2
Стоимость готового дома
р.

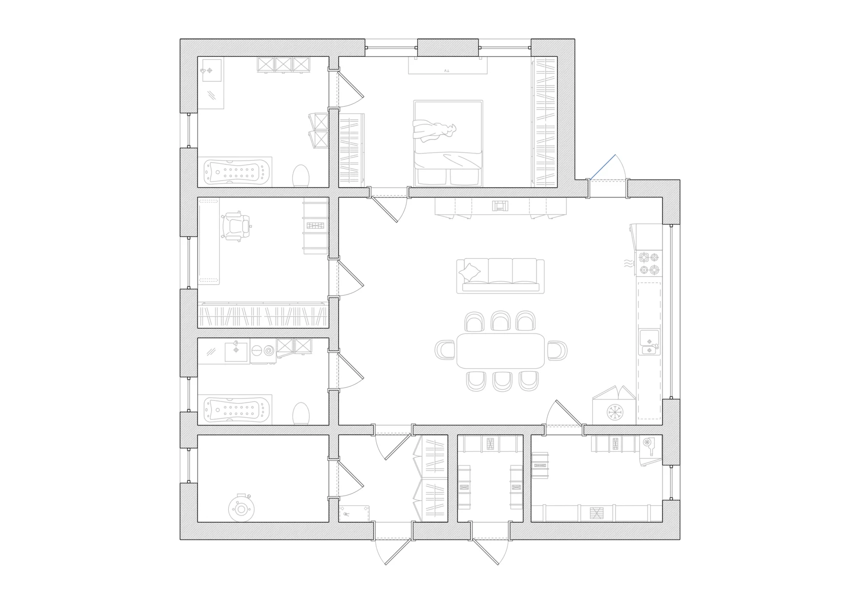
  • Планировка
  • Фасады

Планировка первого этажа дома представлена кухней - столовой, объединенной общим пространством с гостиной, спальней, гостевой, ванной, санузлом и прихожей.

Проектом предусмотрено наличие в доме гаража с доступом в подсобное помещение, а также два входа в дом.

Обращаем ваше внимание, что вы всегда можете внести изменения в проект, исходя из ваших предпочтений в оформлении жилого пространства.

Популярные проекты

Дом ГБ-90, 137.68 кв.м
Дом ГБ-90, 137.68 кв.м
Акция
Хит продаж
Общая площадь дома, м²
82
Размеры дома, м
8x12
Количество комнат
3
Дом ГБ-177, 82 кв.м
Дом ГБ-177, 82 кв.м
Акция
Хит продаж
Общая площадь дома, м²
82
Размеры дома, м
8x12
Количество комнат
3
Дом Мичиган, 140 кв.м
Дом Мичиган, 140 кв.м
Общая площадь дома, м²
140
Размеры дома, м
10х17
Количество комнат
4
Менеджер
Сафронова Екатерина
Ведущий специалист
Консультация специалиста
Мы свяжемся с вами в течение 5 минут
Менеджер
Сафронова Екатерина
Ведущий специалист
Оставить заявку
Мы свяжемся с вами в течение 5 минут
Менеджер
Сафронова Екатерина
Ведущий специалист
Заказать расчет
Мы свяжемся с вами в течение 5 минут