Дом Амика, 106 кв.м

Дом Амика, 106 кв.м
Характеристики
Общая площадь дома, м²
106
Размеры дома, м
16x11
Количество этажей
1
Наличие гаража
без гаража
Количество комнат
5
Количество спален
2
Стоимость готового дома
9900000
р.
110000000р.

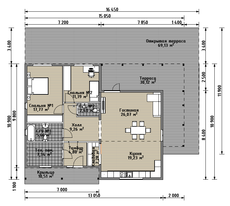
  • Планировка
Комплект каркаса "Амика" - это современный просторный одноэтажный дом для комфортного проживания небольшой семьи.
Общая площадь дома - 146,75м2 (включая площадь крыльца и крытой террасы,без учета площади открытой террасы)

Спальная зона дома эффективно отделена от общей.

При строительстве рекомендуем располагать вход в дом с северной стороны, чтобы тепло и свет наполняли его в течение всего дня.
При таком размещении дома терраса утром будет наполнена солнечным светом для отличного начала дня.


Популярные проекты

Дом ГБ-90, 137.68 кв.м
Дом ГБ-90, 137.68 кв.м
Акция
Хит продаж
Общая площадь дома, м²
82
Размеры дома, м
8x12
Количество комнат
3
Дом ГБ-120, 125 кв.м
Дом ГБ-120, 125 кв.м
Акция
Хит продаж
Общая площадь дома, м²
82
Размеры дома, м
8x12
Количество комнат
3
Дом ГБ-177, 82 кв.м
Дом ГБ-177, 82 кв.м
Акция
Хит продаж
Общая площадь дома, м²
82
Размеры дома, м
8x12
Количество комнат
3
Менеджер
Сафронова Екатерина
Ведущий специалист
Консультация специалиста
Мы свяжемся с вами в течение 5 минут
Менеджер
Сафронова Екатерина
Ведущий специалист
Оставить заявку
Мы свяжемся с вами в течение 5 минут
Менеджер
Сафронова Екатерина
Ведущий специалист
Заказать расчет
Мы свяжемся с вами в течение 5 минут