Комплект каркаса Панозеро, 150 кв.м

Комплект каркаса Панозеро, 150 кв.м
Характеристики
Общая площадь дома, м²
150
Количество этажей
Мансардный
Наличие гаража
без гаража
Количество спален
4
Стоимость готового дома
р.

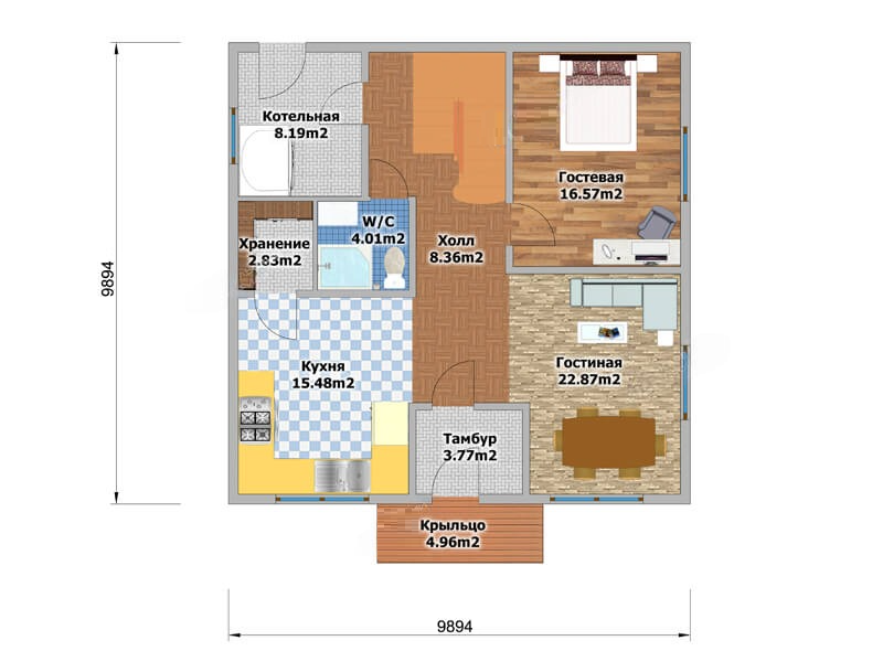
  • Планировка
Изготовление домов по канадской технологии с каждым днём набирает популярность в России и во всём мире. Оригинальная архитектура, красивые и просторные помещения, гибкость планировки – лишь некоторые причины быстрого распространения технологии.

Возможно, вам кажется, что с виду ваш дом будет недостаточно красив? Посмотрите на фото канадских домов: они дают полное представление о том, как будет выглядеть ваше жильё. Учтите, что материалы для наружной и внутренней отделки вы можете выбирать по своему вкусу! Важно и то, что строительство можно начать в любое время года, так как каркасные дома «Дома Карелии» возводятся без так называемых «мокрых работ». На сборку дома уходит несколько дней, и сразу после завершения строительства можно начинать внутреннюю отделку.

Популярные проекты

Менеджер
Сафронова Екатерина
Ведущий специалист
Консультация специалиста
Мы свяжемся с вами в течение 5 минут
Менеджер
Сафронова Екатерина
Ведущий специалист
Оставить заявку
Мы свяжемся с вами в течение 5 минут
Менеджер
Сафронова Екатерина
Ведущий специалист
Заказать расчет
Мы свяжемся с вами в течение 5 минут