Дом Белар, 85 кв.м

Дом Белар, 85 кв.м
Характеристики
Общая площадь дома, м²
84,78
Размеры дома, м
12x9
Количество этажей
1
Наличие гаража
без гаража
Количество комнат
4
Количество спален
2
Стоимость готового дома
от
18900000
р.

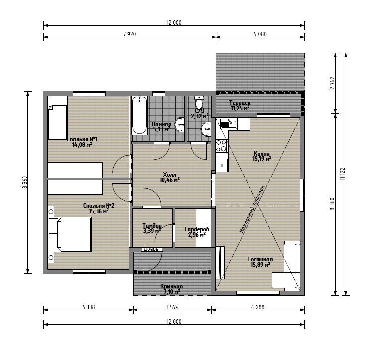
  • Планировка

Проект уютного дома, площадью 84,78 м2 и площадь крыльца и террасы 18,35 м2

Современный дом, в котором есть все:

- 2 спальных комнаты

- просторная кухня- гостинная

- большие панорамные окна и двери

Один из наиболее эргономичных проектов для любой семьи.

И все в скромных габаритах.

Вы можете внести свои изменения в проект, закажите предварительный расчет своей идеи или закажите типовой проект.

Популярные проекты

Дом ГБ-90, 137.68 кв.м
Дом ГБ-90, 137.68 кв.м
Акция
Хит продаж
Общая площадь дома, м²
82
Размеры дома, м
8x12
Количество комнат
3
Дом ГБ-120, 125 кв.м
Дом ГБ-120, 125 кв.м
Акция
Хит продаж
Общая площадь дома, м²
82
Размеры дома, м
8x12
Количество комнат
3
Дом ГБ-177, 82 кв.м
Дом ГБ-177, 82 кв.м
Акция
Хит продаж
Общая площадь дома, м²
82
Размеры дома, м
8x12
Количество комнат
3
Менеджер
Сафронова Екатерина
Ведущий специалист
Консультация специалиста
Мы свяжемся с вами в течение 5 минут
Менеджер
Сафронова Екатерина
Ведущий специалист
Оставить заявку
Мы свяжемся с вами в течение 5 минут
Менеджер
Сафронова Екатерина
Ведущий специалист
Заказать расчет
Мы свяжемся с вами в течение 5 минут