Дом Липке, 119 кв.м

Дом Липке, 119 кв.м
Акция
Хит продаж
Характеристики
Общая площадь дома, м²
119
Размеры дома, м
14x12
Количество этажей
1
Наличие гаража
без гаража
Количество комнат
4
Количество спален
3
Стоимость готового дома
р.

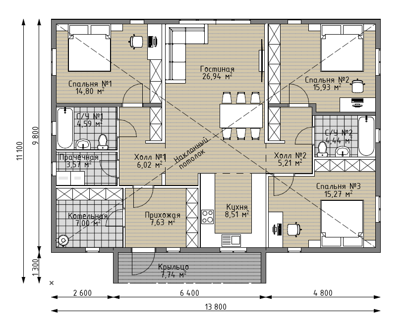
  • Планировка
Современный просторный одноэтажный дом для комфортного проживания небольшой семьи.
Общая площадь дома - 116 м2

Спальная зона дома эффективно отделена от общей.

При строительстве рекомендуем располагать вход в дом с северной стороны, чтобы тепло и свет наполняли его в течение всего дня.
При таком размещении дома терраса утром будет наполнена солнечным светом для отличного начала дня.


• Спальных комнат: 3 шт.

• Санузлов: 2 шт.

• Просторная кухня-гостиная

• Котельная

• Прачечная

• Рациональная планировка


Популярные проекты

Дом ГБ-90, 137.68 кв.м
Дом ГБ-90, 137.68 кв.м
Акция
Хит продаж
Общая площадь дома, м²
82
Размеры дома, м
8x12
Количество комнат
3
Дом ГБ-120, 125 кв.м
Дом ГБ-120, 125 кв.м
Акция
Хит продаж
Общая площадь дома, м²
82
Размеры дома, м
8x12
Количество комнат
3
Дом ГБ-177, 82 кв.м
Дом ГБ-177, 82 кв.м
Акция
Хит продаж
Общая площадь дома, м²
82
Размеры дома, м
8x12
Количество комнат
3
Менеджер
Сафронова Екатерина
Ведущий специалист
Консультация специалиста
Мы свяжемся с вами в течение 5 минут
Менеджер
Сафронова Екатерина
Ведущий специалист
Оставить заявку
Мы свяжемся с вами в течение 5 минут
Менеджер
Сафронова Екатерина
Ведущий специалист
Заказать расчет
Мы свяжемся с вами в течение 5 минут