Дом Кваттро, 185 кв.м

Дом Кваттро, 185 кв.м
Характеристики
Общая площадь дома, м²
185
Размеры дома, м
20x14
Количество этажей
1
Наличие гаража
на 2 машины
Количество комнат
4
Количество спален
3
Стоимость готового дома
р.

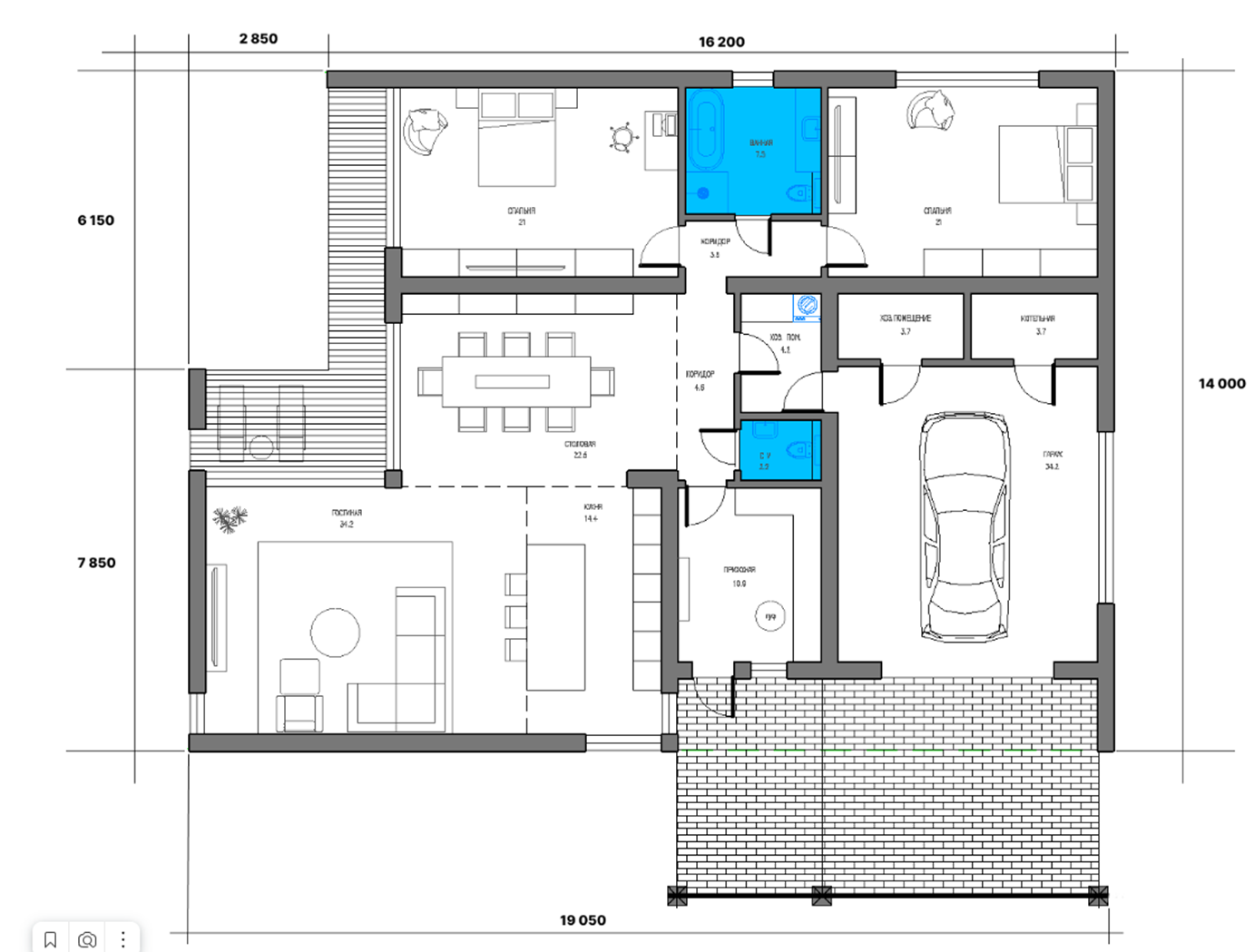
  • Планировка
Cовременный просторный одноэтажный дом для комфортного проживания небольшой семьи.
Общая площадь дома - 185 м2 , включает в себя гостиную (34,2 м2), совмещенную с кухней (14,4 м2), столовую (22,5 м2), 2 спальни по 22 м2, 2 санузла.
Из гостиной и столовой спроектирован выход на небольшую террасу (10,3 м2).

Спальная зона дома эффективно отделена от общей.

При строительстве рекомендуем располагать вход в дом с северной стороны, чтобы тепло и свет наполняли его в течение всего дня.
При таком размещении дома терраса утром будет наполнена солнечным светом для отличного начала дня.


Популярные проекты

Дом ГБ-90, 137.68 кв.м
Дом ГБ-90, 137.68 кв.м
Акция
Хит продаж
Общая площадь дома, м²
82
Размеры дома, м
8x12
Количество комнат
3
Дом ГБ-120, 125 кв.м
Дом ГБ-120, 125 кв.м
Акция
Хит продаж
Общая площадь дома, м²
82
Размеры дома, м
8x12
Количество комнат
3
Дом ГБ-177, 82 кв.м
Дом ГБ-177, 82 кв.м
Акция
Хит продаж
Общая площадь дома, м²
82
Размеры дома, м
8x12
Количество комнат
3
Менеджер
Сафронова Екатерина
Ведущий специалист
Консультация специалиста
Мы свяжемся с вами в течение 5 минут
Менеджер
Сафронова Екатерина
Ведущий специалист
Оставить заявку
Мы свяжемся с вами в течение 5 минут
Менеджер
Сафронова Екатерина
Ведущий специалист
Заказать расчет
Мы свяжемся с вами в течение 5 минут