Дом из газобетона Асилан, 36 кв.м

  • Описание
  • Характеристики
  • Оплата и доставка

Проект каркасного дома Асилан площадью 35,1 м2 – прекрасное решение для тех, кому нужен небольшой дом для отдыха или постоянного проживания.

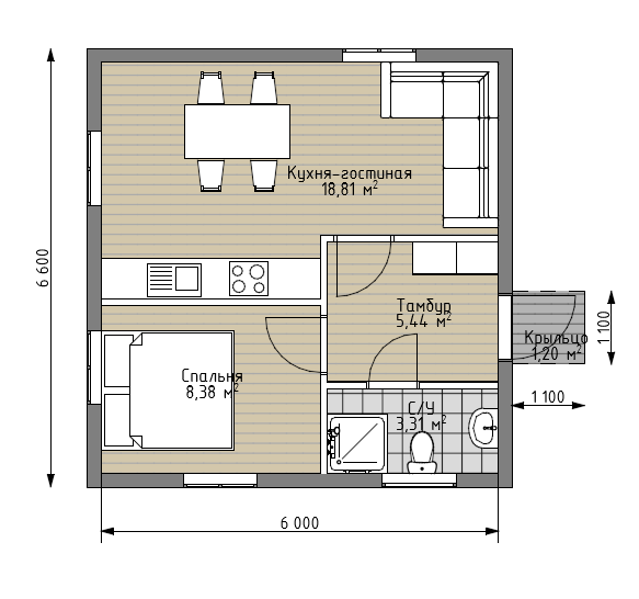
Архитектура дома простая и лаконичная. Изолированные друг от друга помещения спальни, кухни и санузла удобны в эксплуатации данного проекта дома.

Дом может запроектирован в двух вариантах:
- для семьи из 2 (двух) взрослых человек
- для семьи из 4 (четырех) человек: двух взрослых и двух детей

Небольшие габариты дома хорошо разместятся даже на маленьком земельном участке. Каркасный дом Алакуртти удобен для сборки своими руками.

Доступен в ипотеку

Оплата

Оплата товара осуществляется по наличному или безналичному расчету.

  • Оплата наличными. Оплатить можно в офисе компании (есть терминал для пластиковых карт VISA и MasterCard)
  • Безналичный расчет доставка будет произведена в течение 3 дней после поступления денежных средств на наш расчетный счет.

Доставка

Наша компания располагает собственным автопарком. Доставка осуществляется в рабочие дни с 9-00 до 20-00. Оформляется доставка одновременно с заказом.

Если вы забираете ваши товары самостоятельно, то вам необходимо будет связаться с нашими менеджерами, чтобы согласовать время отгрузки.

При заказе на сумму более 50 000 руб. доставка по Санкт-Петербургу и Ленинградской области (30 км от КАД) осуществляется бесплатно!

Популярные товары

Акция
Хит продаж
Дом из газобетона ГБ-352, 80,35 кв.м
Акция
Хит продаж
Дом из газобетона ГБ-325, 125,5 кв.м
Менеджер
Сафронова Екатерина
Ведущий специалист
Консультация специалиста
Мы свяжемся с вами в течение 5 минут
Менеджер
Сафронова Екатерина
Ведущий специалист
Оставить заявку
Мы свяжемся с вами в течение 5 минут
Менеджер
Сафронова Екатерина
Ведущий специалист
Заказать расчет
Мы свяжемся с вами в течение 5 минут