Дом из газобетона Хийтола, 70 кв.м

  • Описание
  • Характеристики
  • Оплата и доставка

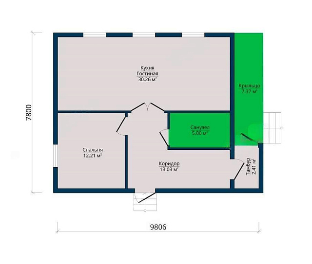
Проектом предусмотрена просторная, светлая кухня - гостиная 30.26 м², одна спальная зона 12.21 м², коридор 13.03 м², санузел 5.00 м², тамбур 2.41 м² и длинное крыльцо 7.37 м².

Стильное архитектурное исполнение и продуманная планировка позволяют использовать пространство максимально эффективно. Глухая стена дома дает возможность дополнительной пристройки к дому гаража или хозблока.

Обращаем ваше внимание, что вы всегда можете внести изменения в проект, исходя из ваших предпочтений в оформлении жилого пространства.

Оплата

Оплата товара осуществляется по наличному или безналичному расчету.

  • Оплата наличными. Оплатить можно в офисе компании (есть терминал для пластиковых карт VISA и MasterCard)
  • Безналичный расчет доставка будет произведена в течение 3 дней после поступления денежных средств на наш расчетный счет.

Доставка

Наша компания располагает собственным автопарком. Доставка осуществляется в рабочие дни с 9-00 до 20-00. Оформляется доставка одновременно с заказом.

Если вы забираете ваши товары самостоятельно, то вам необходимо будет связаться с нашими менеджерами, чтобы согласовать время отгрузки.

При заказе на сумму более 50 000 руб. доставка по Санкт-Петербургу и Ленинградской области (30 км от КАД) осуществляется бесплатно!

Популярные товары

Акция
Хит продаж
Дом из газобетона ГБ-352, 80,35 кв.м
Акция
Хит продаж
Дом из газобетона ГБ-325, 125,5 кв.м
Менеджер
Сафронова Екатерина
Ведущий специалист
Консультация специалиста
Мы свяжемся с вами в течение 5 минут
Менеджер
Сафронова Екатерина
Ведущий специалист
Оставить заявку
Мы свяжемся с вами в течение 5 минут
Менеджер
Сафронова Екатерина
Ведущий специалист
Заказать расчет
Мы свяжемся с вами в течение 5 минут