Дом из газобетона Важозеро, 66 кв.м

  • Описание
  • Характеристики
  • Оплата и доставка

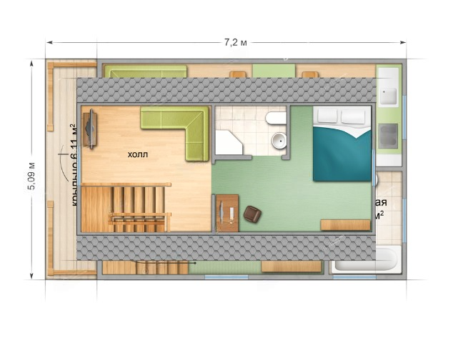
Удобная внутренняя планировка предполагает большую столовую-гостиную на первом этаже площадью 20,62 м², с выходом на крыльцо в 6.11м², ванную комнату в 4.8 м², холл 6.52 м² с лестницей, ведущей на второй этаж дома, где проектом предусмотрены холл и одна спальная зона с выходом в душевую. Наличие террасы является преимуществом этого домокомплекта.

Обращаем ваше внимание, что вы всегда можете внести изменения в проект, исходя из ваших предпочтений в оформлении жилого пространства.

Оплата

Оплата товара осуществляется по наличному или безналичному расчету.

  • Оплата наличными. Оплатить можно в офисе компании (есть терминал для пластиковых карт VISA и MasterCard)
  • Безналичный расчет доставка будет произведена в течение 3 дней после поступления денежных средств на наш расчетный счет.

Доставка

Наша компания располагает собственным автопарком. Доставка осуществляется в рабочие дни с 9-00 до 20-00. Оформляется доставка одновременно с заказом.

Если вы забираете ваши товары самостоятельно, то вам необходимо будет связаться с нашими менеджерами, чтобы согласовать время отгрузки.

При заказе на сумму более 50 000 руб. доставка по Санкт-Петербургу и Ленинградской области (30 км от КАД) осуществляется бесплатно!

Популярные товары

Акция
Хит продаж
Дом из газобетона ГБ-352, 80,35 кв.м
Акция
Хит продаж
Дом из газобетона ГБ-325, 125,5 кв.м
Менеджер
Сафронова Екатерина
Ведущий специалист
Консультация специалиста
Мы свяжемся с вами в течение 5 минут
Менеджер
Сафронова Екатерина
Ведущий специалист
Оставить заявку
Мы свяжемся с вами в течение 5 минут
Менеджер
Сафронова Екатерина
Ведущий специалист
Заказать расчет
Мы свяжемся с вами в течение 5 минут