Дом из газобетона Ринда, 45 кв.м

  • Описание
  • Характеристики
  • Оплата и доставка

Дом Ринда — уют и комфорт для вашего дачного отдыха


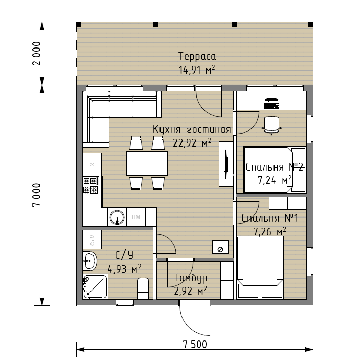
Дом Ринда — это идеальное решение для тех, кто ценит комфорт, функциональность и рациональное использование пространства. Этот компактный садовый дом предлагает всё необходимое для приятного отдыха за городом: просторную кухню, уютную гостиную, светлую спальню, удобный санузел и отдельный гардероб.


Благодаря открытой планировке с объединёнными кухней и гостиной, интерьер выглядит просторнее и создаёт ощущение домашнего тепла. Такое решение не только визуально расширяет пространство, но и делает быт более удобным — вы всегда на связи с семьёй, даже когда заняты на кухне.


Спальня наполнена светом благодаря двум большим окнам, создавая спокойную и расслабляющую атмосферу. Удобное расположение кухни и санузла на одной стене упрощает монтаж инженерных коммуникаций, что делает строительство быстрее и экономичнее.


Особое внимание уделено террасе — настоящему сердцу летнего отдыха. Она защищает от дождя и палящего солнца, а её просторная площадь позволяет разместить обеденную зону или зону отдыха. Здесь так приятно проводить вечера с чашкой чая, наслаждаясь свежим воздухом и природой — особенно после напряжённой городской суеты.


Благодаря компактным размерам, дом Ринда легко разместится даже на небольшом участке. Он отлично подойдёт как для постоянного отдыха, так и в качестве гостевого домика рядом с основным жильём — практично, автономно и со вкусом.


Мы строим с заботой о качестве: используются современные технологии, экологичные материалы и проверенные решения. Дом Ринда — это не просто строение, а готовое пространство для жизни, отдыха и тепла.


Выберите Ринда — и обретите свой уютный уголок за городом.


Посетите наш сайт, чтобы узнать больше о доме Янисъярви и других интересных проектах. Мы готовы помочь вам создать свой идеальный дом для отдыха и комфорта.быть использован как домик для гостей, рядом с основным домом.

Оплата

Оплата товара осуществляется по наличному или безналичному расчету.

  • Оплата наличными. Оплатить можно в офисе компании (есть терминал для пластиковых карт VISA и MasterCard)
  • Безналичный расчет доставка будет произведена в течение 3 дней после поступления денежных средств на наш расчетный счет.

Доставка

Наша компания располагает собственным автопарком. Доставка осуществляется в рабочие дни с 9-00 до 20-00. Оформляется доставка одновременно с заказом.

Если вы забираете ваши товары самостоятельно, то вам необходимо будет связаться с нашими менеджерами, чтобы согласовать время отгрузки.

При заказе на сумму более 50 000 руб. доставка по Санкт-Петербургу и Ленинградской области (30 км от КАД) осуществляется бесплатно!

Популярные товары

Акция
Хит продаж
Дом из газобетона ГБ-352, 80,35 кв.м
Акция
Хит продаж
Дом из газобетона ГБ-325, 125,5 кв.м
Менеджер
Сафронова Екатерина
Ведущий специалист
Консультация специалиста
Мы свяжемся с вами в течение 5 минут
Менеджер
Сафронова Екатерина
Ведущий специалист
Оставить заявку
Мы свяжемся с вами в течение 5 минут
Менеджер
Сафронова Екатерина
Ведущий специалист
Заказать расчет
Мы свяжемся с вами в течение 5 минут