Дом из газобетона Раздолье, 98 кв.м

  • Описание
  • Характеристики
  • Оплата и доставка

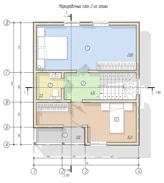
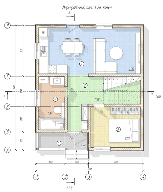
Мы представляем вам проект Раздолье - Канадский дом с современным стилем архитектуры. Этот двухэтажный мансардный дом с верандой обладает площадью 98 м2 и является идеальным выбором для тех, кто ищет сочетание комфорта, функциональности и современного дизайна.

Наша команда специалистов разработала этот проект, учитывая самые современные тенденции в строительстве и дизайне. В результате получился дом, который отличается не только стильным внешним видом, но и удобной планировкой.

Просторная веранда приглашает вас насладиться свежим воздухом и прекрасными видами, а внутреннее пространство дома организовано таким образом, чтобы обеспечить максимальный комфорт и уют для всей семьи. Высокие потолки, большие окна и светлая атмосфера создают ощущение пространства и свободы.

Кроме того, наш Канадский дом проектируется с использованием современных технологий и материалов, обеспечивающих высокую энергоэффективность и экологическую чистоту. Мы гарантируем качество каждой детали и строго следим за процессом производства.

На нашем сайте вы найдете более подробную информацию о проекте Раздолье - Канадский дом, а также другие интересные предложения. Мы также готовы предложить индивидуальное проектирование, чтобы удовлетворить все ваши потребности и пожелания.

Выберите качество, комфорт и современный стиль с компанией Дома Карелии. Мы с удовольствием поможем вам создать свой идеальный дом!

Оплата

Оплата товара осуществляется по наличному или безналичному расчету.

  • Оплата наличными. Оплатить можно в офисе компании (есть терминал для пластиковых карт VISA и MasterCard)
  • Безналичный расчет доставка будет произведена в течение 3 дней после поступления денежных средств на наш расчетный счет.

Доставка

Наша компания располагает собственным автопарком. Доставка осуществляется в рабочие дни с 9-00 до 20-00. Оформляется доставка одновременно с заказом.

Если вы забираете ваши товары самостоятельно, то вам необходимо будет связаться с нашими менеджерами, чтобы согласовать время отгрузки.

При заказе на сумму более 50 000 руб. доставка по Санкт-Петербургу и Ленинградской области (30 км от КАД) осуществляется бесплатно!

Популярные товары

Акция
Хит продаж
Дом из газобетона ГБ-352, 80,35 кв.м
Акция
Хит продаж
Дом из газобетона ГБ-325, 125,5 кв.м
Менеджер
Сафронова Екатерина
Ведущий специалист
Консультация специалиста
Мы свяжемся с вами в течение 5 минут
Менеджер
Сафронова Екатерина
Ведущий специалист
Оставить заявку
Мы свяжемся с вами в течение 5 минут
Менеджер
Сафронова Екатерина
Ведущий специалист
Заказать расчет
Мы свяжемся с вами в течение 5 минут